MARIBEL HOME

Descripción

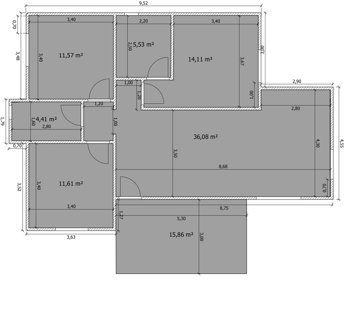
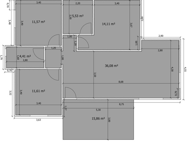
Modelo MARIBEL HOME de  86 m2 +  15 M2 porche - terraza.

Construcción de 3 dormitorios, 2 baños y salón - cocina

Sistema constructivo madera maciza.



Sistema constructivo tipo sándwich, cámara de aire en paredes interiores, exteriores y techos.


Detalles del producto

   
Medidas x x

Compartir:

Gallery Thumb 1 Gallery Thumb 1 Gallery Thumb 1 Gallery Thumb 1 Gallery Thumb 1 Gallery Thumb 1 Gallery Thumb 1 Gallery Thumb 1 Gallery Thumb 1 Gallery Thumb 1 Gallery Thumb 1

Financiación hasta el 100%

Financiamos su compra. Consulte las condiciones con nosotros.

Servicio de transporte

Península, Baleares e Islas Canarias.

Montaje en toda España

Montamos en toda España. Consulte precio según ciudad de destino.