MODELO LOW COST
29,25 m2
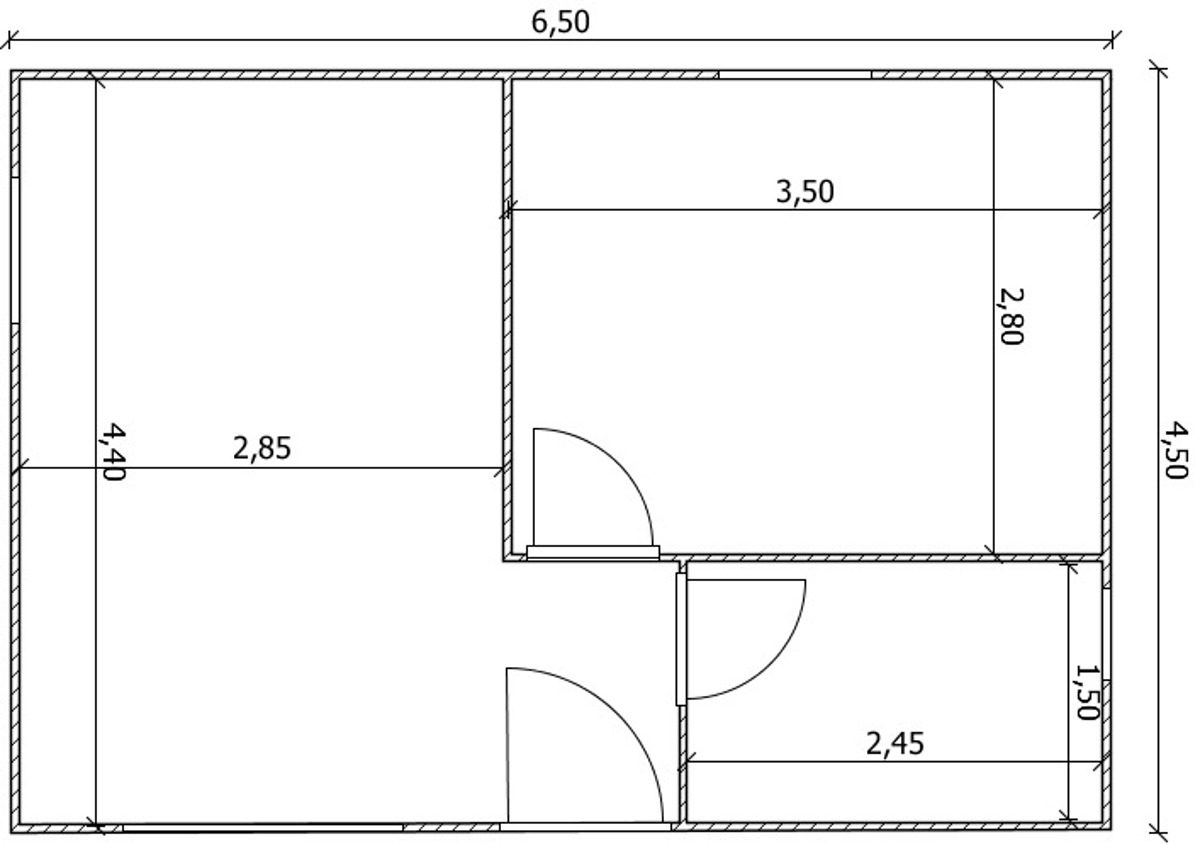
Consta de habitación, salón comedor, aseo, cocina.
Construcción modular pudiendo adosar los módulos que uno quiera
Fabricación a medida, elige la mejor distribución para aprovechar el espacio y crea un interior a tu gusto.
Sistema constructivo tipo sándwich, cámara de aire en paredes interiores, exteriores y techos.
OFERTA DEL MES
23.900 € + IVA
CAMARA DE AIRE CON AISLAMIENTO, ELECTRICIDAD, FONTANERIA Y SANITARIOS
(CONSULTE CONDICIONES)
Sistema constructivo madera maciza.
Sistema constructivo tipo sándwich, cámara de aire en paredes interiores, exteriores y techos.
Detalles del producto
| Superficie | 29 m2 |
| Habitaciones | 1 |
| Alturas | 1 |
| Medidas | 6.5 x 4.5 x |
| Aseos | 1 |































